Request a Viewing

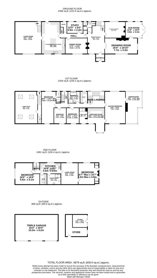
The accommodation has been extensively renovated and updated by our clients and is very versatile in its layout to suit an individual's needs. A particular feature is the stunning Clive Christian Kitchen with built in Miele appliances, Italian marble working surfaces and a modern electric Aga with traditional hotplates and induction hob. This provides a lovely central 'hub' to the home and from here is an excellent and very spacious day to day living room above which is a fabulous games room and WC.
The reception hall provides a grand entrance to the house with open fireplace and a lovely oak staircase to the first floor with a large, original Crittall window. From this room, the sitting room, garden room and library are accessible together with the cloakroom and WC. The inner hall ultimately leads to the kitchen but also accesses the formal dining room, study, butler's pantry and second staircase. As mentioned, the accommodation is versatile and whilst we have called the library this name for obvious reasons, this room would also make an excellent second reception room to be used as required and has a lovely open fireplace and views over the pond and waterfall.
To the first floor, the landing leads to a fabulous master bedroom suite with a very spacious bedroom benefitting from a triple aspect, a stunning, fitted dressing room and ensuite shower room. The Observatory is access from the bedroom and provides some of the finest views in Cheshire with Shutlingsloe clearly visible at the rear.
The landing also gives access to bedroom 2 with ensuite shower room, two further bedrooms and a lovely family bathroom with free standing bath, Hans Grohe shower and underfloor heating.
The second floor provides further accommodation including a large double bedroom and area which can be used as a self contained apartment with very well appointed kitchen, utility room, sitting room and stunning bedroom with Oak paneling and fireplace. This area would make an excellent Air B&B or as a relative/teenagers suite.
Externally, the house benefits from ample parking, a large detached triple garage and outbuilding with store room and garden room/Gym which overlook a Marquis Spa hot tub. To the immediate rear of the house is a beautifully landscaped formal garden area with large pond stocked with Japanese Koy carp and a stunning waterfall. This area is well stocked with plants and shrubs and also has a lovely pergola.
To the front, there is further formal lawned garden enjoying the best of the views with well stocked boarders and fruit trees. To the far end of the garden are 4KW solar panels.
Oakenclough Hall is situated in a very private and peaceful location yet is only around 10 minute drive from Macclesfield town centre where a wide range of facilities will be found together with the railway station which sits on the main West coast line with direct access to both London and Manchester. Being on the edge of the Peak District there is immediate access to all the area has to offer including some of the finest walks and well regarded pubs including the Hanging Gate, The Ship in Wincle, The Leathers Smithy and Church House.
Schooling wise, Macclesfield has an excellent selection of both state and private schools including The Kings School and Beech Hall and more locally there is a primary school in Sutton and Wincle.
Property Information:
Main electricity is connected. Drainage is to a 12 person sewage treatment plant. The property has a private water supply via bore hole. The heating is warmed by LPG with an underground tank and air sourced heat pump for the hot water. 4KW solar panels are installed. We must advised prospective purchasers that none of the fixtures, fittings or services have been tested. Buyers are advised to obtain their own independent reports prior to purchaser. EPC Band - E. Council Tax Band - H (Cheshire East Council). Tenure - we are informed is freehold.
